Warning: Undefined array key 0 in /home/tuyens601/public_html/wp-content/themes/hitivilla/template-parts/content.php on line 9

Warning: Attempt to read property "name" on null in /home/tuyens601/public_html/wp-content/themes/hitivilla/template-parts/content.php on line 9

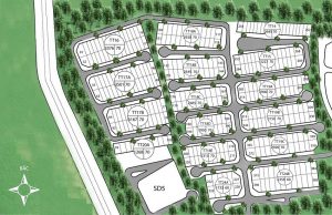
mat bang phan lo lien ke gamuda st5

mat-bang-phan-lo-khu-lien-ke-gamuda-st5

Tin tức khác